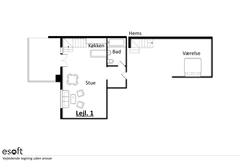
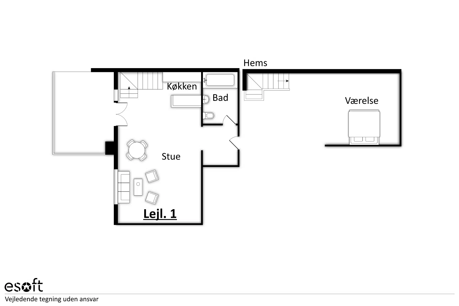
Lejlighed 1