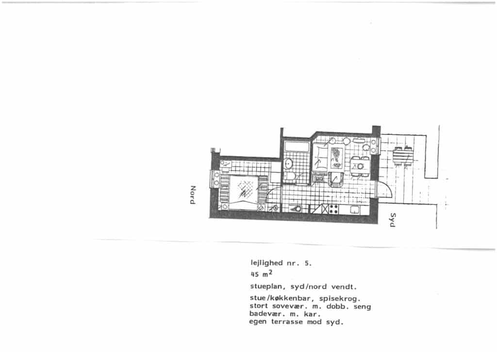
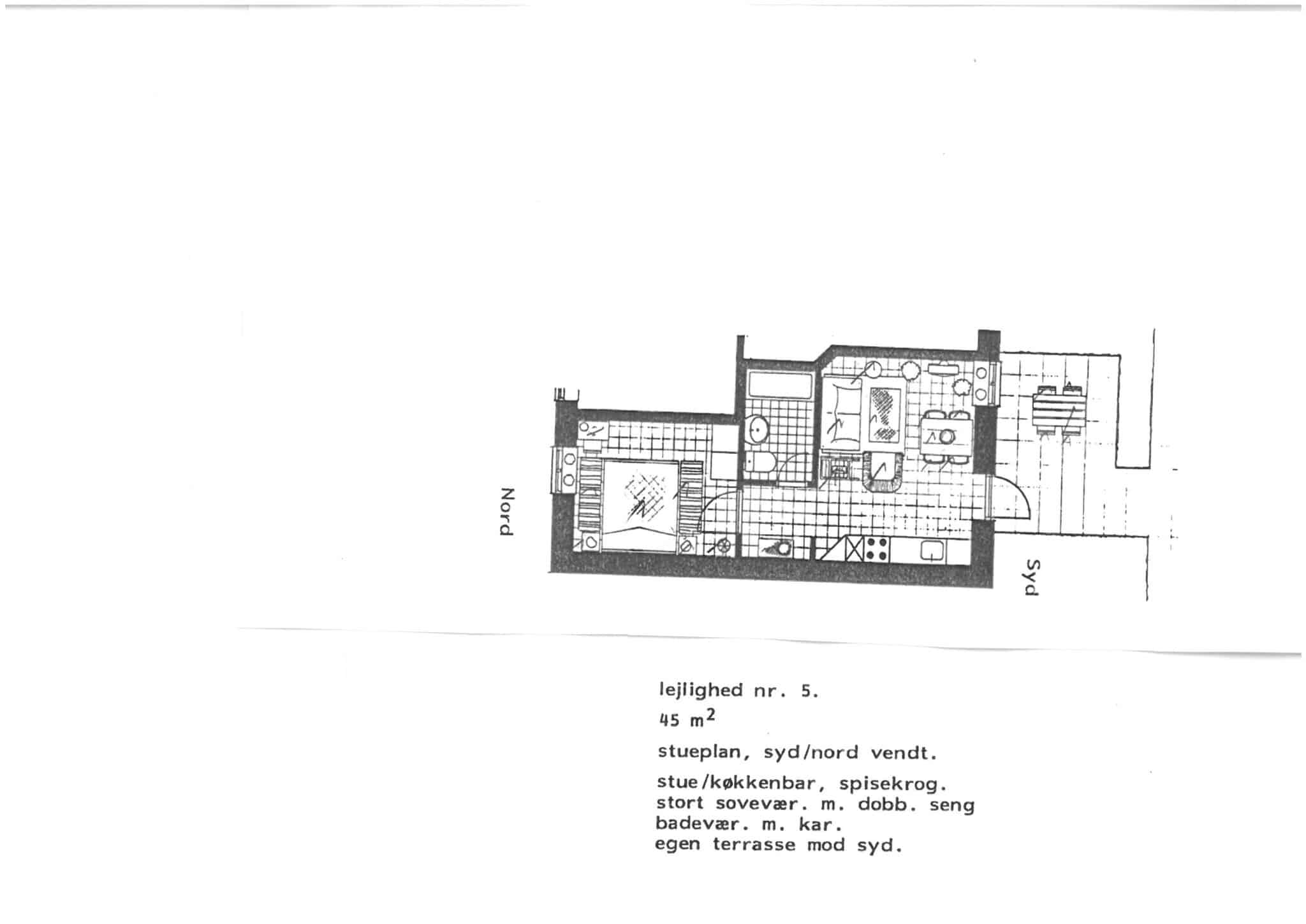
Lejlighed 5