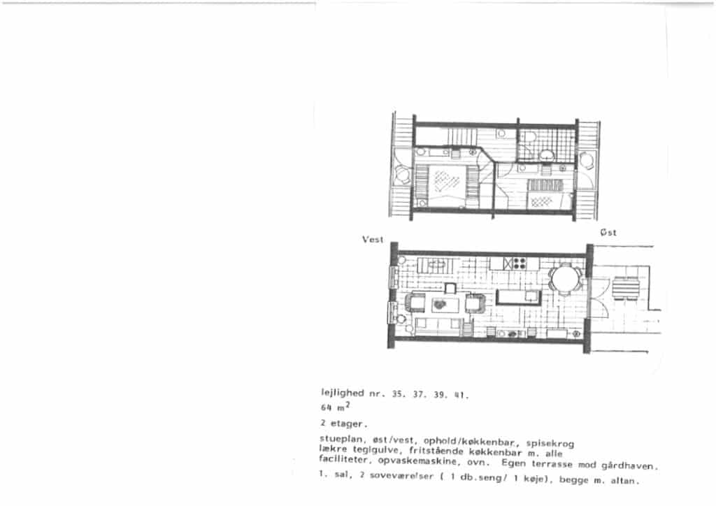
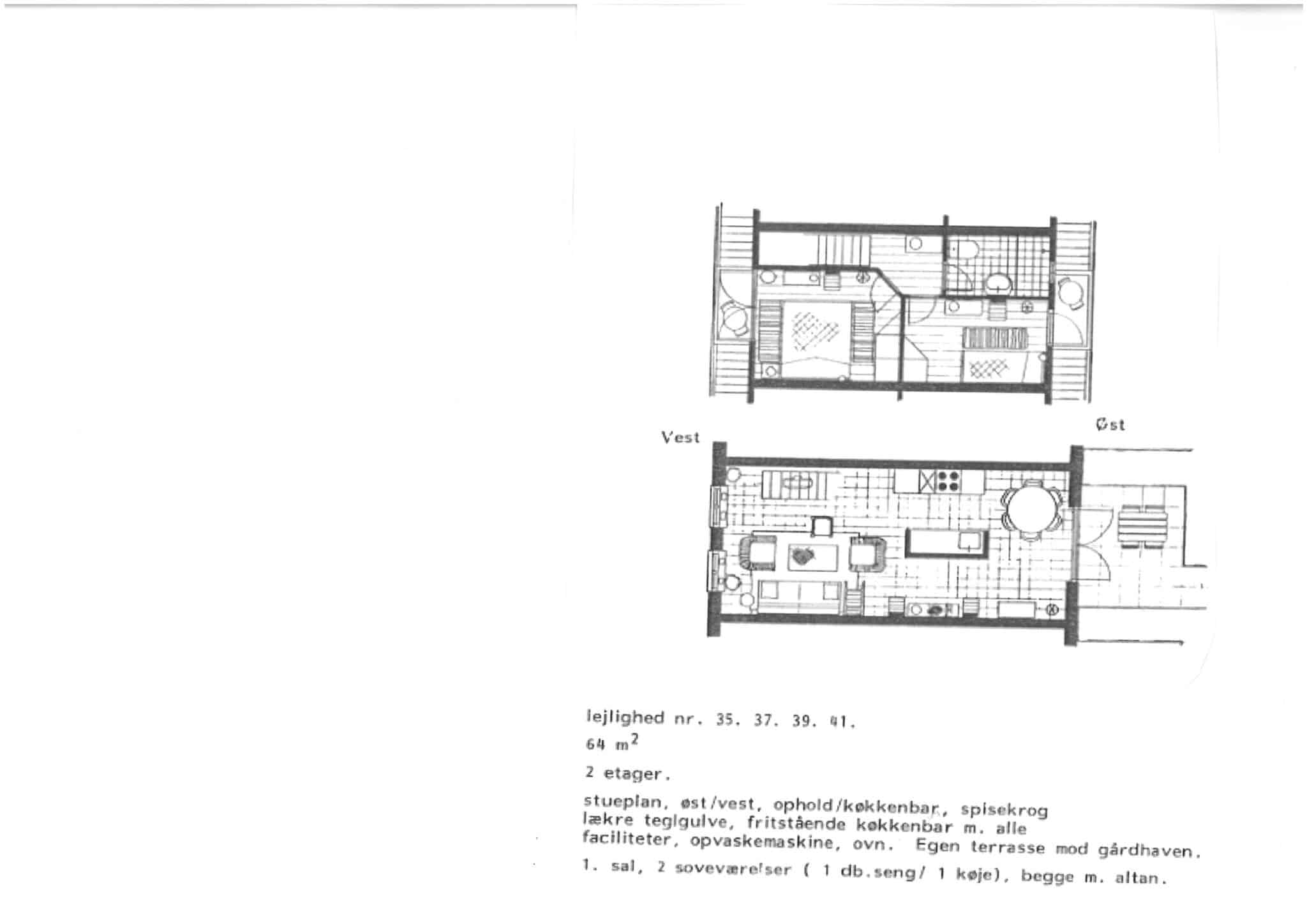
Lejlighed 41