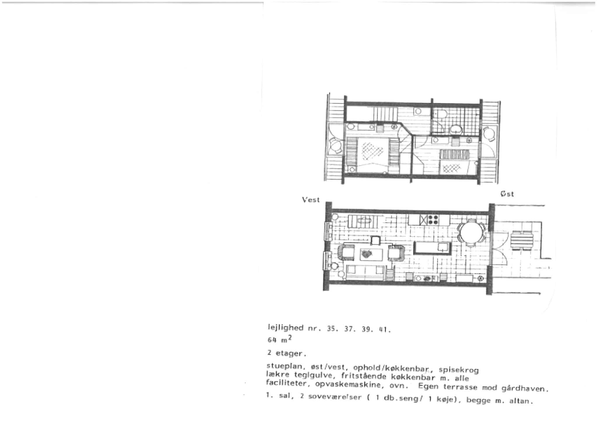
Lejlighed 40