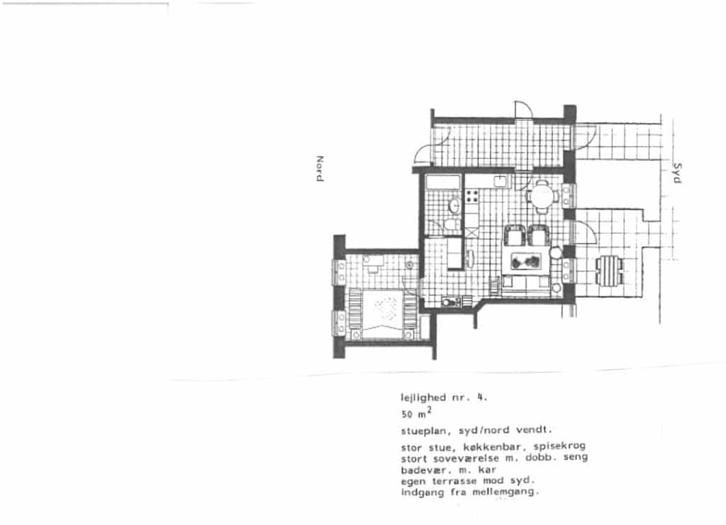
Lejlighed 4