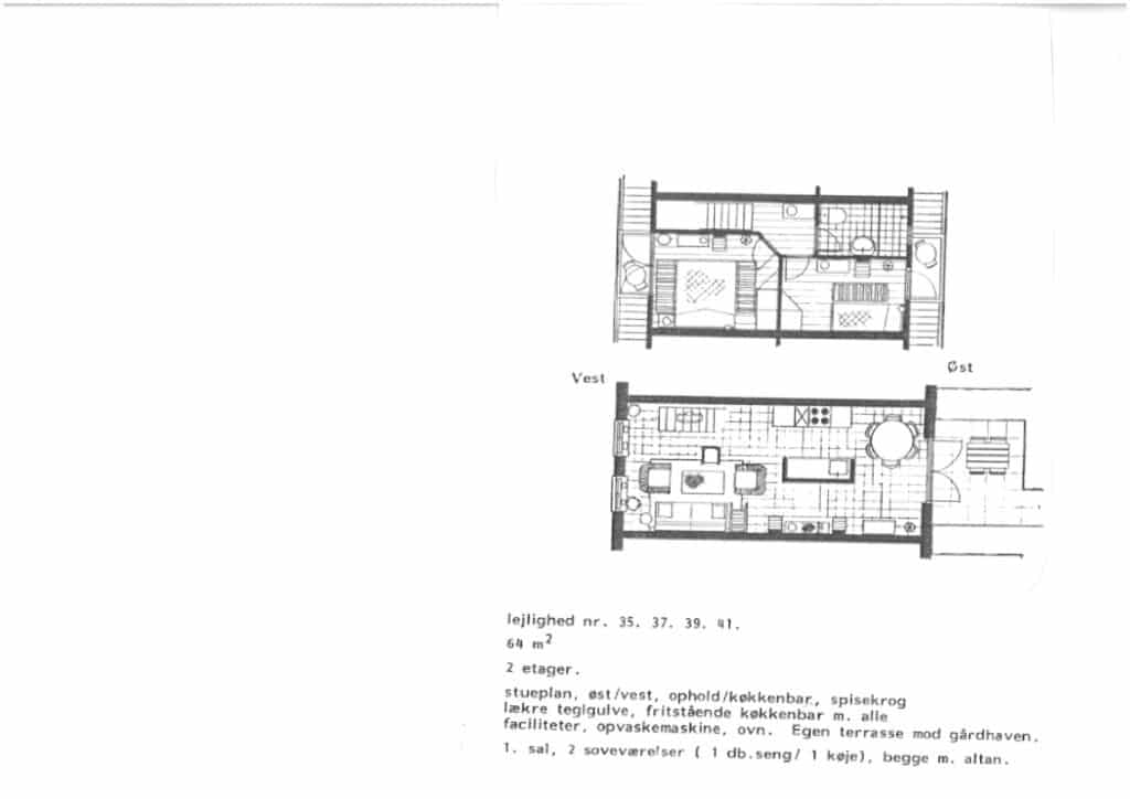
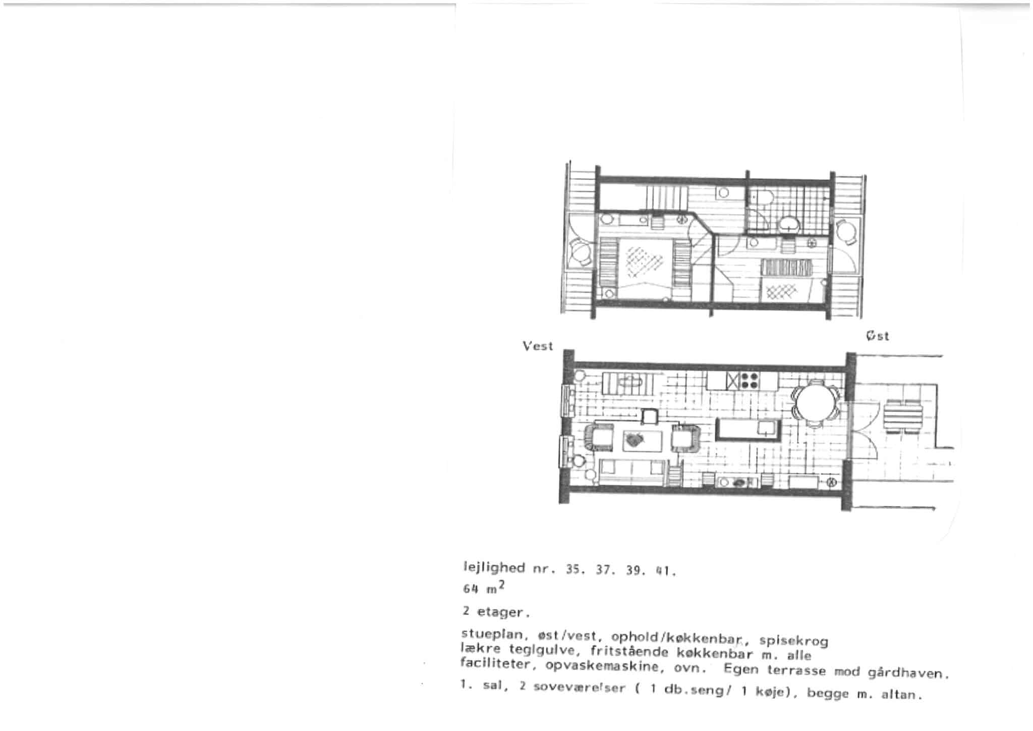
Lejlighed 39