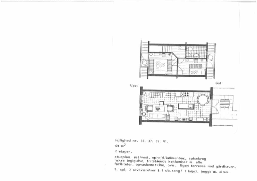
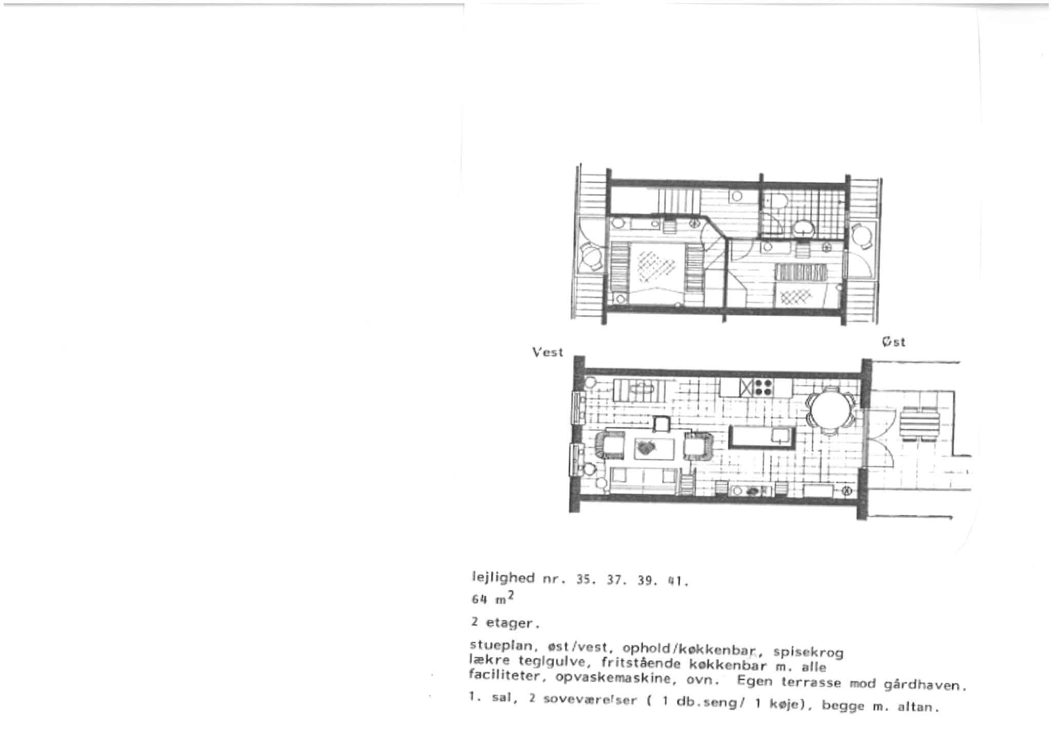
Lejlighed 35