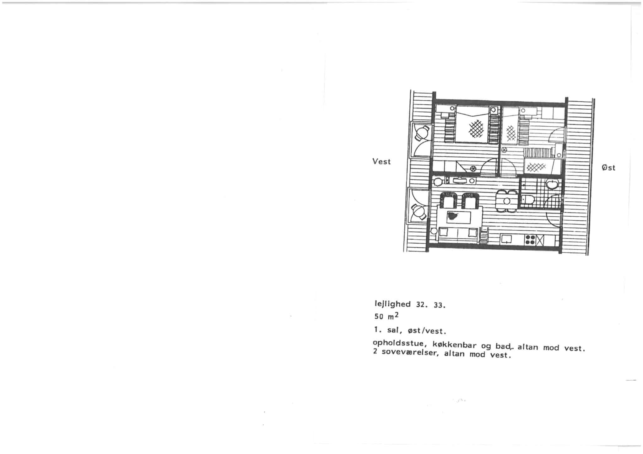
Lejlighed 33