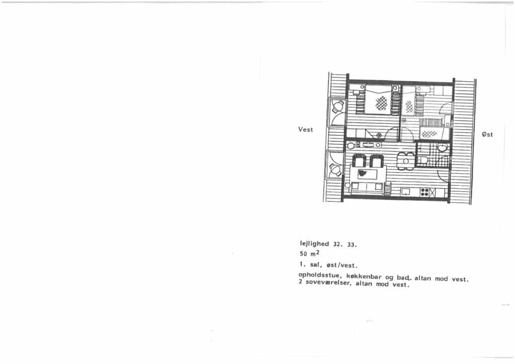
Lejlighed 32