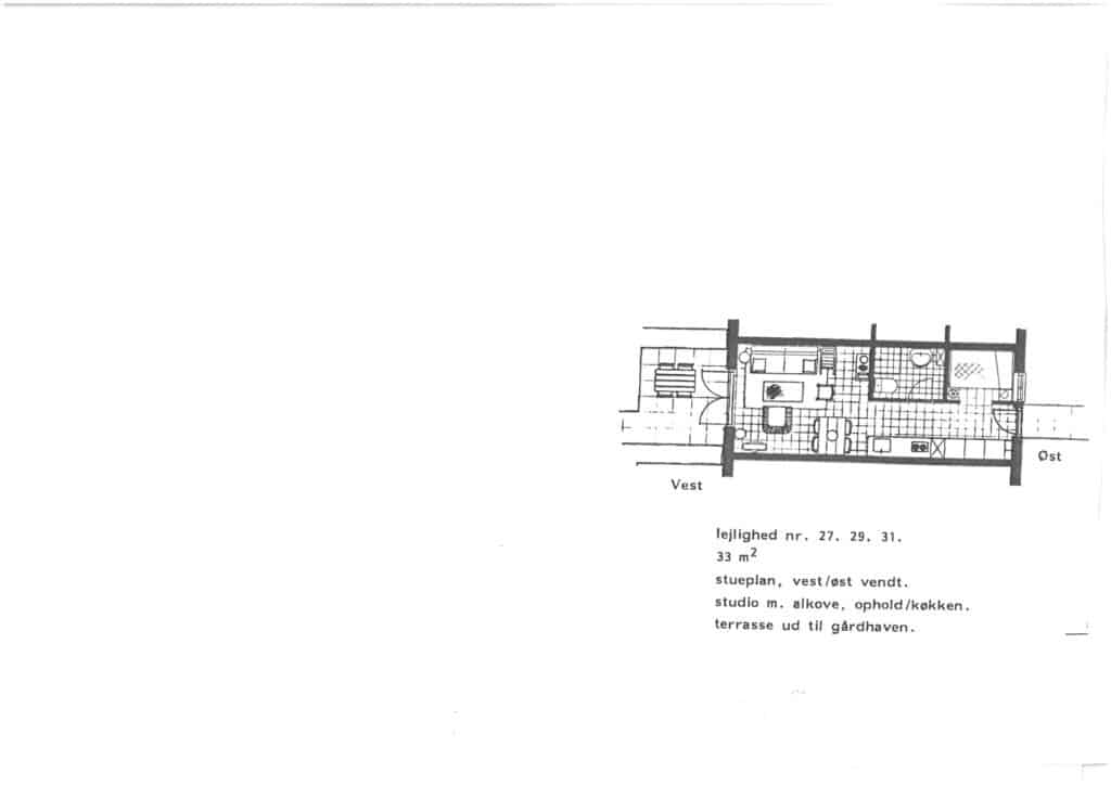
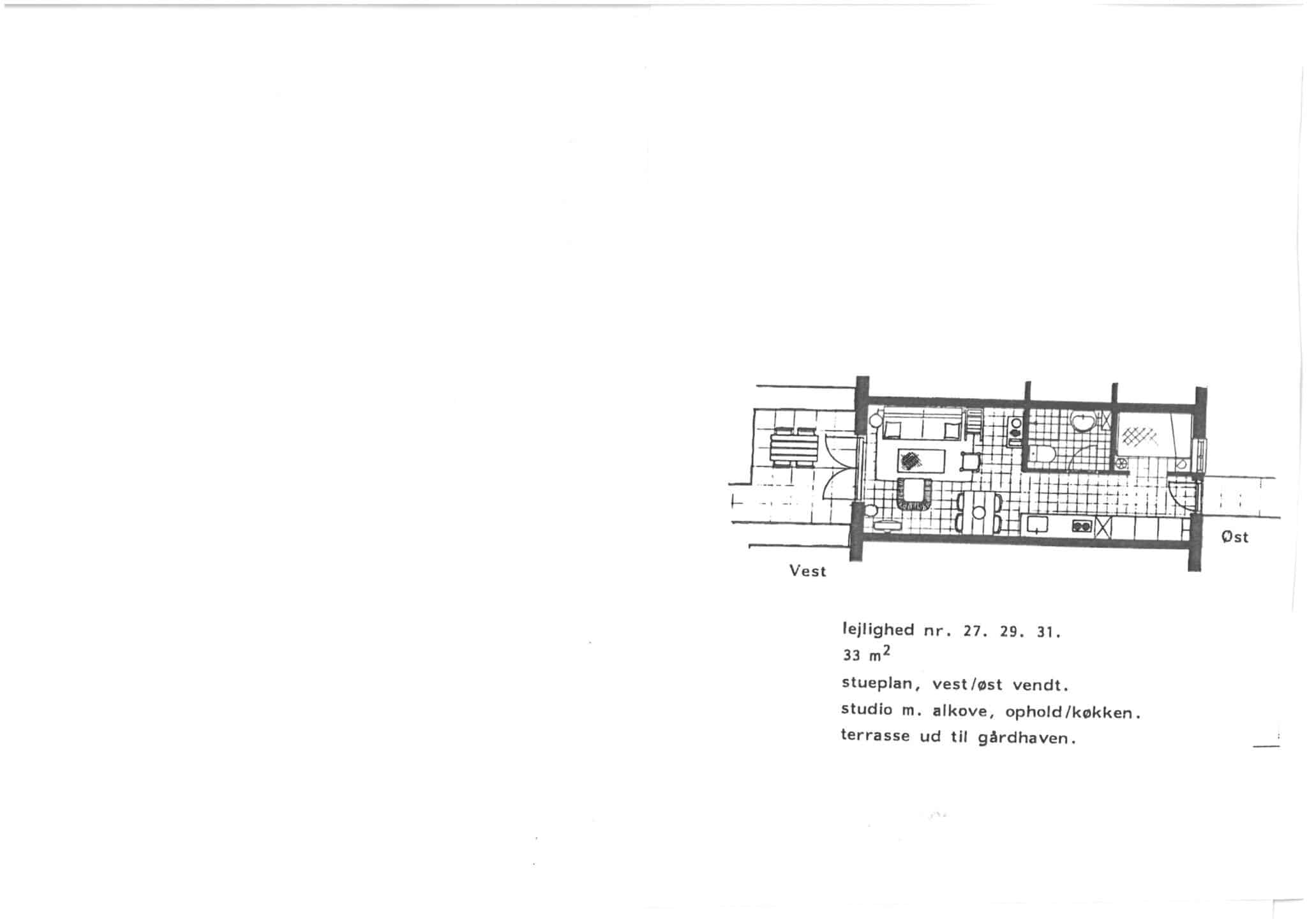
Lejlighed 31