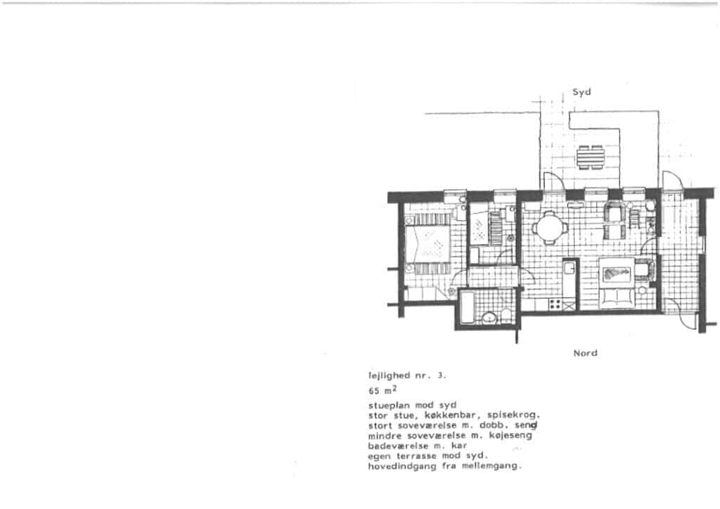
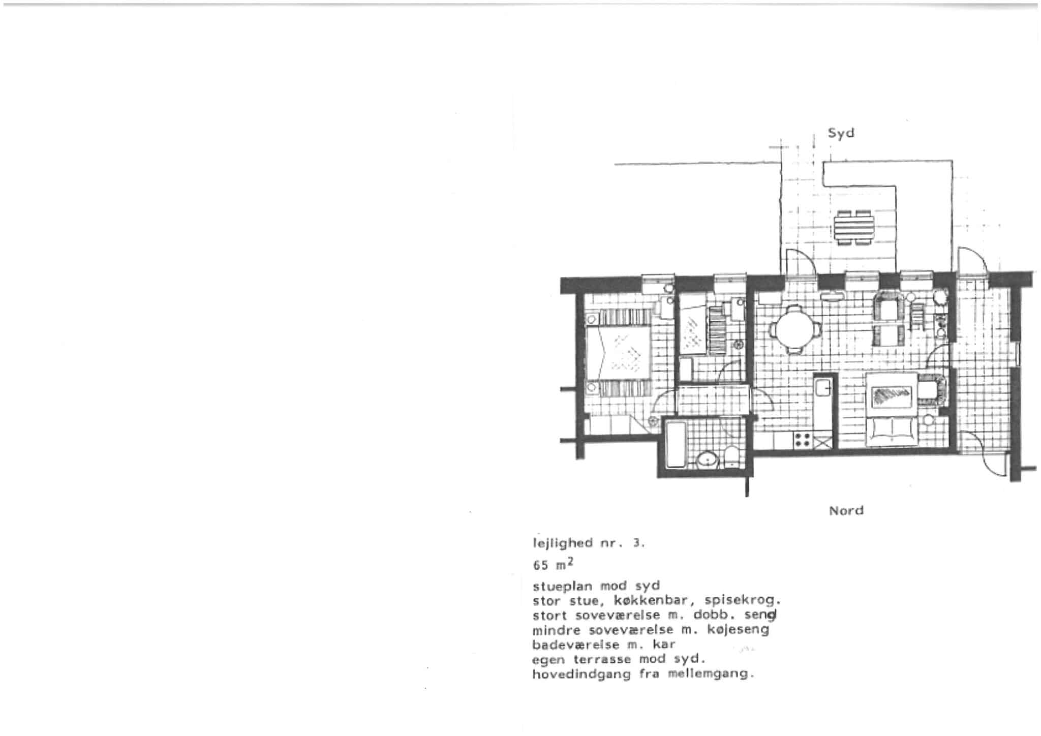
Lejlighed 3