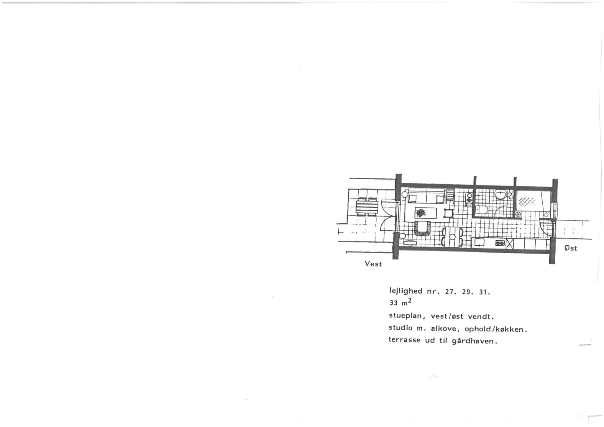
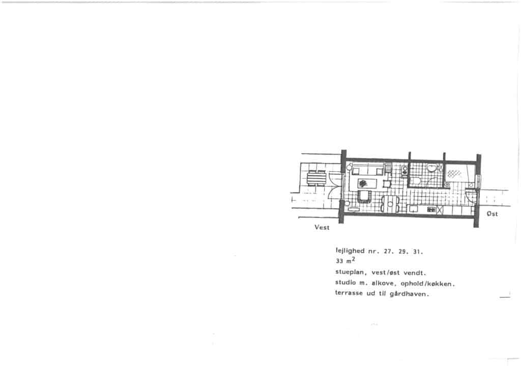
Lejlighed 29