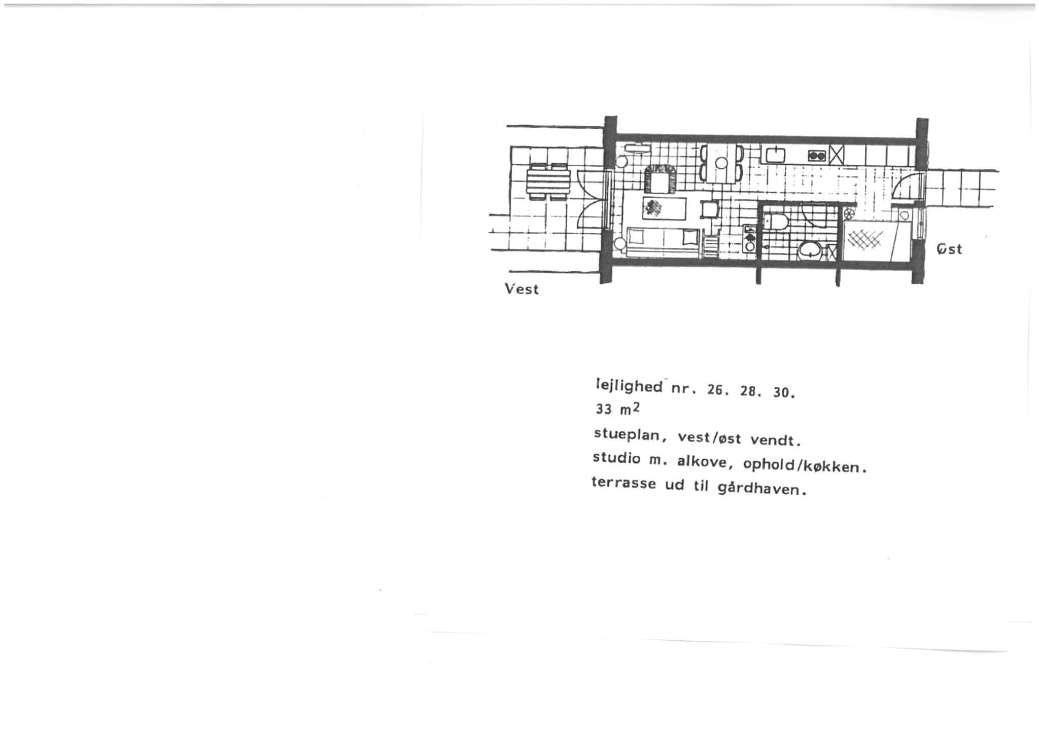
Lejlighed 28