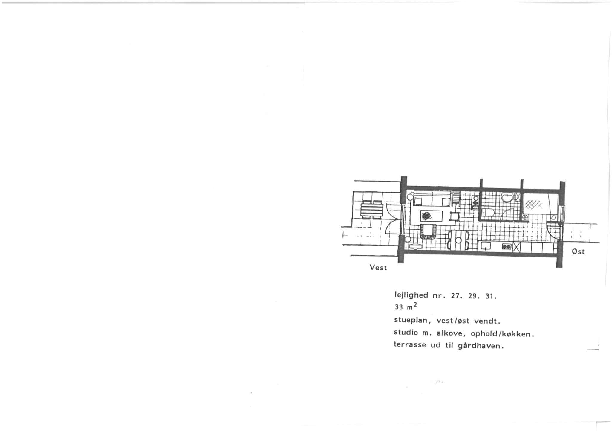
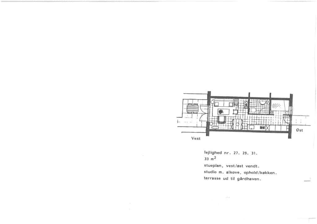
Lejlighed 27