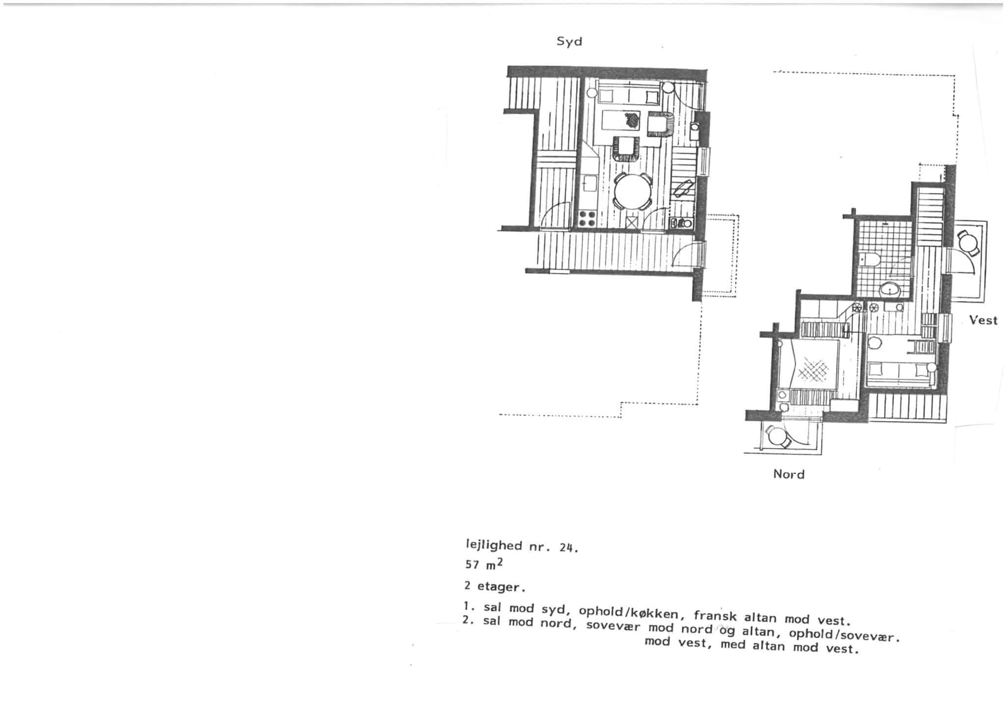
Lejlighed 24