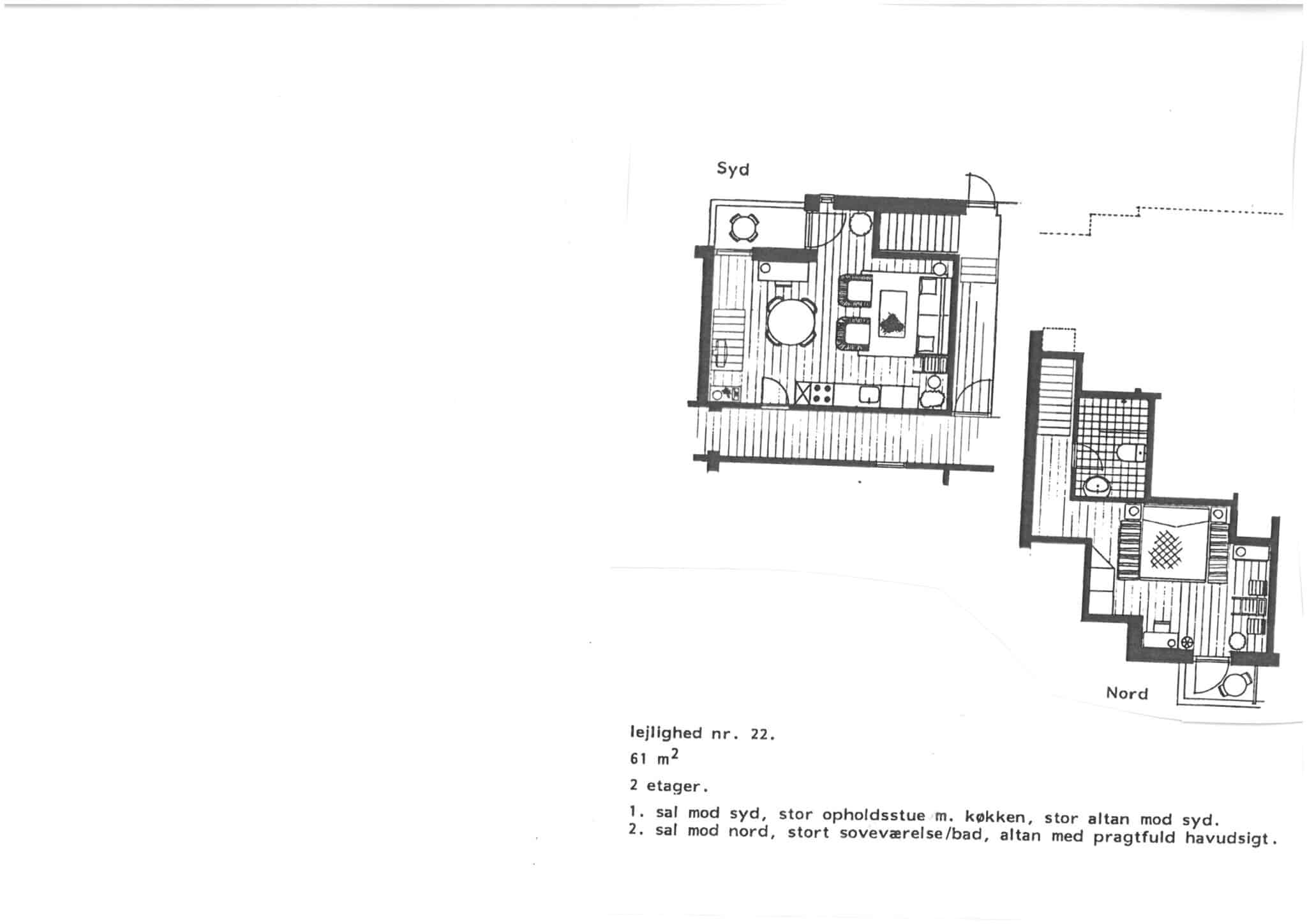
Lejlighed 22