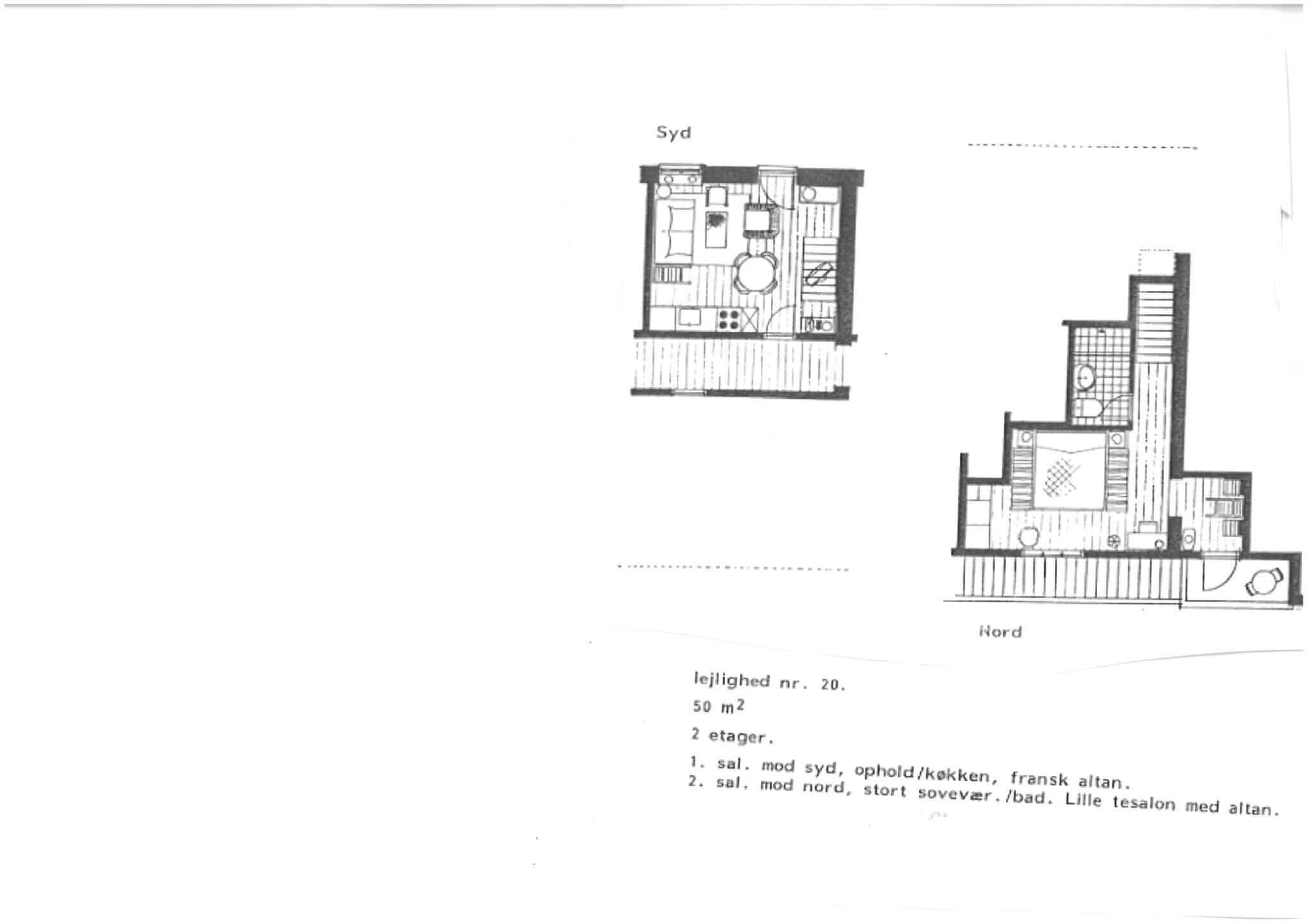
Lejlighed 20