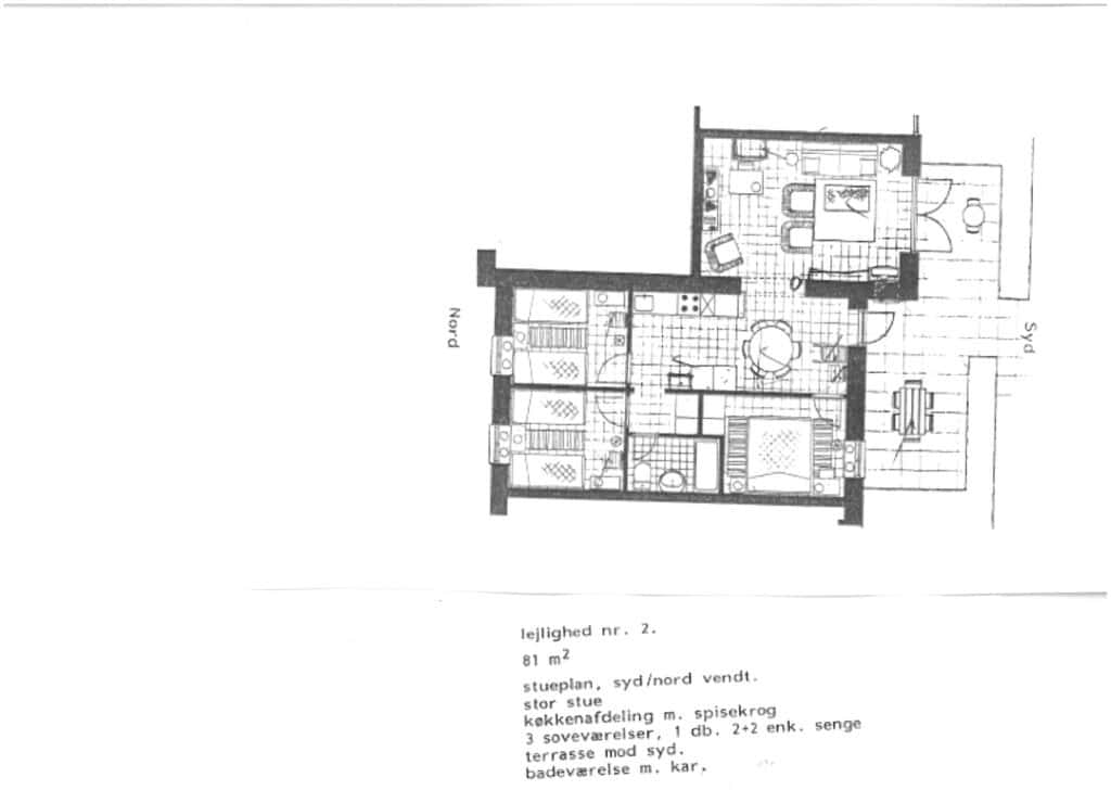
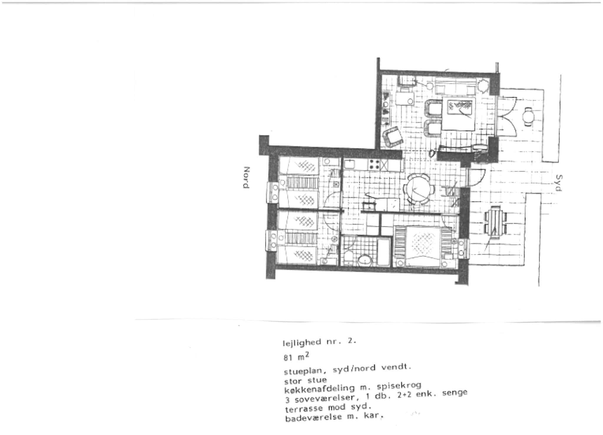
Lejlighed 2