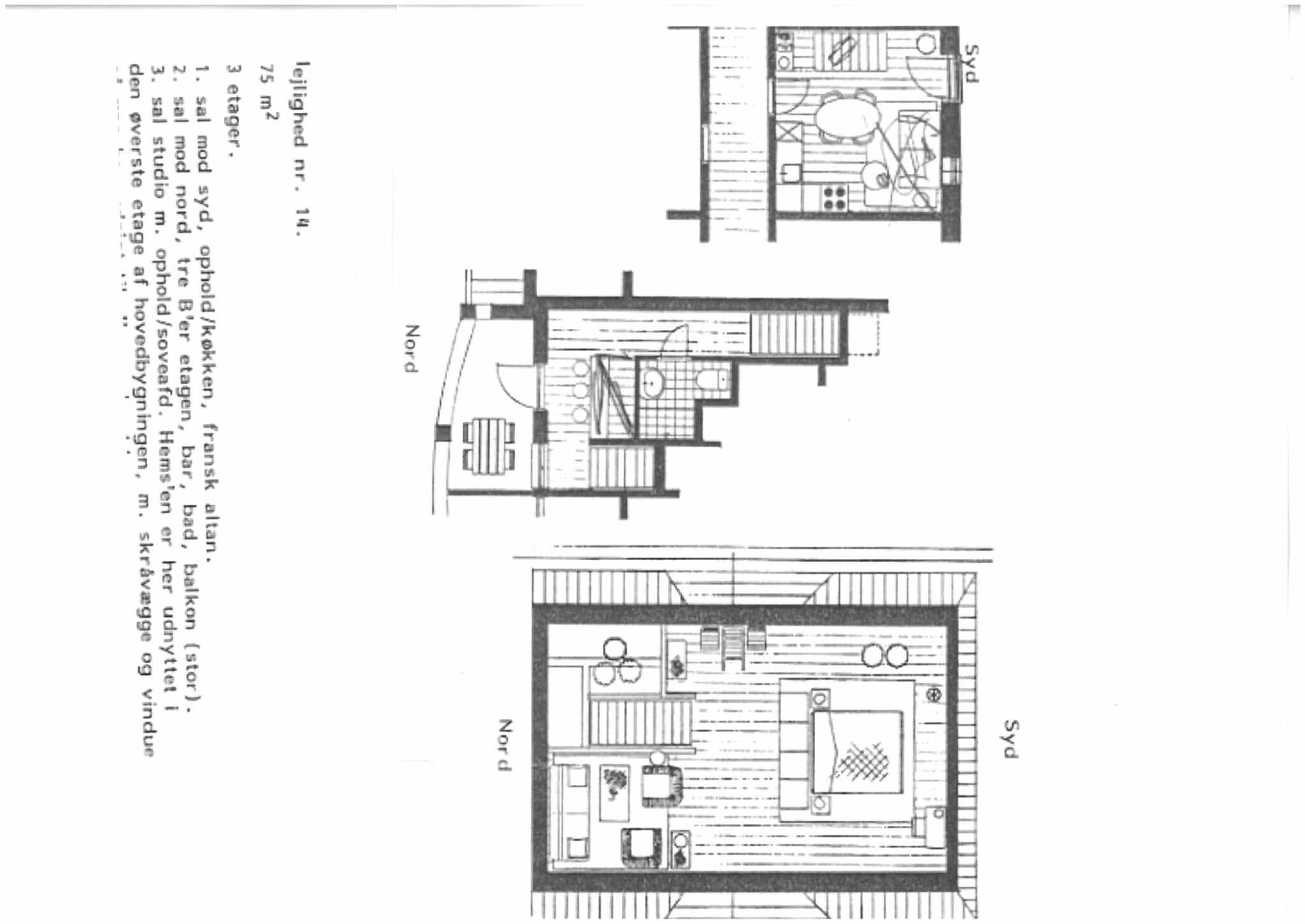
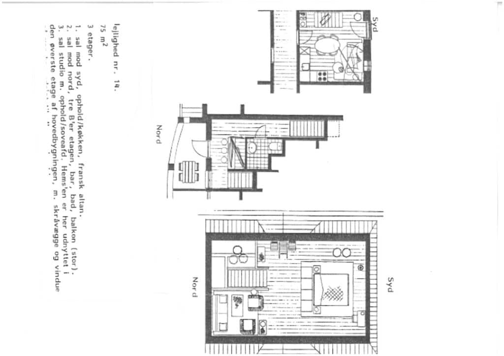
Lejlighed 14