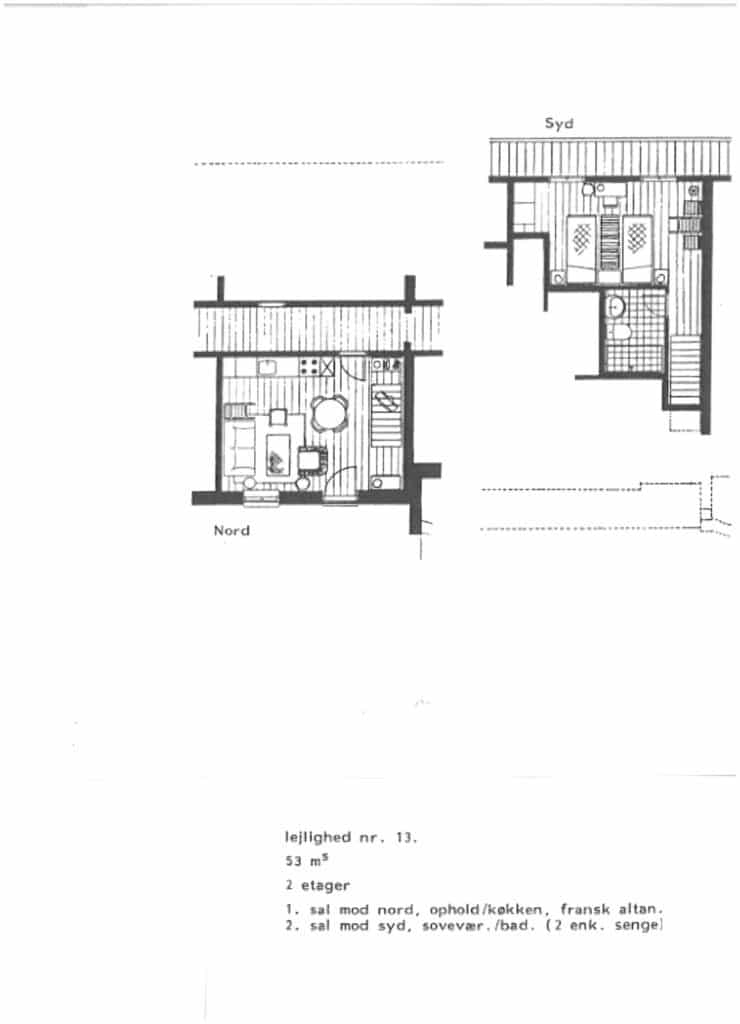
Lejlighed 13