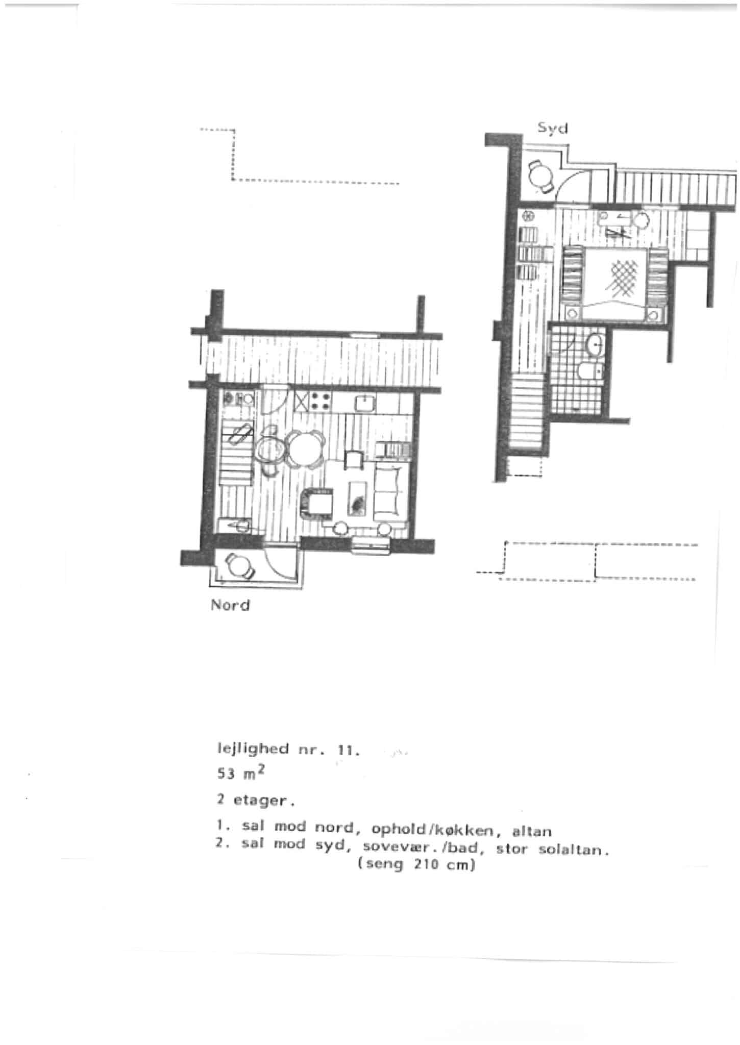
Lejlighed 11